Home
Login
Villa Details
Cabo Luxury Villa – Casa Theodore
Book Now
Bedroom 1 – Pool‑Facing Master Suite
Bedroom 2 – White Water View Suite
Bedroom 3 – White Water View Suite
Bedroom 4 – Guest Suite
Bedroom 5 – Guest Suite with Large Ensuite
Bedroom 6 – Flexible Suite
Bedroom 7 – Flexible Suite
Bedroom 8 – Private Suite
Bedroom 9 – Master Suite with Terrace
Bedroom 10 – Ocean View Suite
Bedroom 11 – Ocean View Suite
Main Deck Bar Area
Main Deck Fire Pit
Main Entry
Main House Kitchen
Main Dining Room
Main House Living Room
Main Deck Pool
Ocean View Suites Jacuzzi
Ocean View Suites Living Room
Ocean View Suites Kitchen
Activities
ATV & Off-Roading
Cooking Classes
Day Sailing
Dolphin & Shark Activities
Fishing
Miscellaneous
Party Cruises
Snorkel And Scuba
Sunset Cruises And Sailing
Water Activities
Whale Watching
Ziplining And Bungee Jumping
Online Calendar
Chef Services
Breakfast/Brunch
Lunch
Dinner
Soups and Salads
Appetizers
Entrees
Desserts
Kids
Snacks
All Inclusive Basic
All Inclusive Standard
All Inclusive Luxury
Additional Wait Staff
Holiday Dinners
Chef Services Photos
Catering
Cooking Classes
Recipes
VIP Services
Personal Bartender
Personal Butler
Personal Waiter
Transportation
Party Planner
Party Planner Assistant
Private House Security
Private Security Host
Personal Dishwasher
Spa Services
Mariachi Band 3 Piece Trio
Mariachi 5 Piece Band
Yoga Class
Restaurants
Hacienda Cocina
Edith's Restaurant
Nick San Restaurant
La Golondrina
La Pampa Restaurante
Maria Corona Restaurant
Solomon's Landing
The Office
Tres Sirenas
Sur Beach Club
Floor Plan
Casa Theodore Floor Plans
Casa Theodore Bedroom Layout
Store
Pre-Stocking Packages
Food
Beverages
Additional Options
Travel Insurance/Damage Protection
Gift Certificates
Special Event Packages
Cart
Information
Villa Amenities
Terms & Conditions
Reviews
FAQ's
Videos
Driving Directions
Staff Bios
Customer Photos
Special Events Photos
Credit Card Auth Form
Security Deposit Auth Form
Enhanced Cleaning Protocol
RESERVATION HOTLINE
818-835-0438
BOOK NOW
Casa Theodore
Log in
Username
Password
Log in
Remember Me
Your account will be created when you place your first reservation
Username
Password
Log in
Home
Casa Theodore Floor Plans
Casa Theodore Floor Plans
Main Level
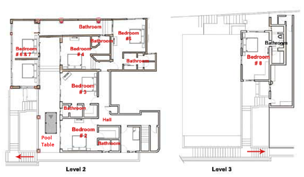
Level - 2 & 3
Level - 4 & 5
Cabo San Lucas MX
Cabo San Lucas, MX
69°F
Overcast Clouds
Wed, 27 05
77°F
68°F
Thu, 28 05
79°F
67°F
Home
Login
Villa Details
Cabo Luxury Villa – Casa Theodore
Book Now
Bedroom 1 – Pool‑Facing Master Suite
Bedroom 2 – White Water View Suite
Bedroom 3 – White Water View Suite
Bedroom 4 – Guest Suite
Bedroom 5 – Guest Suite with Large Ensuite
Bedroom 6 – Flexible Suite
Bedroom 7 – Flexible Suite
Bedroom 8 – Private Suite
Bedroom 9 – Master Suite with Terrace
Bedroom 10 – Ocean View Suite
Bedroom 11 – Ocean View Suite
Main Deck Bar Area
Main Deck Fire Pit
Main Entry
Main House Kitchen
Main Dining Room
Main House Living Room
Main Deck Pool
Ocean View Suites Jacuzzi
Ocean View Suites Living Room
Ocean View Suites Kitchen
Activities
ATV & Off-Roading
Cooking Classes
Day Sailing
Dolphin & Shark Activities
Fishing
Miscellaneous
Party Cruises
Snorkel And Scuba
Sunset Cruises And Sailing
Water Activities
Whale Watching
Ziplining And Bungee Jumping
Online Calendar
Chef Services
Breakfast/Brunch
Lunch
Dinner
Soups and Salads
Appetizers
Entrees
Desserts
Kids
Snacks
All Inclusive Basic
All Inclusive Standard
All Inclusive Luxury
Additional Wait Staff
Holiday Dinners
Chef Services Photos
Catering
Cooking Classes
Recipes
VIP Services
Personal Bartender
Personal Butler
Personal Waiter
Transportation
Party Planner
Party Planner Assistant
Private House Security
Private Security Host
Personal Dishwasher
Spa Services
Mariachi Band 3 Piece Trio
Mariachi 5 Piece Band
Yoga Class
Restaurants
Hacienda Cocina
Edith's Restaurant
Nick San Restaurant
La Golondrina
La Pampa Restaurante
Maria Corona Restaurant
Solomon's Landing
The Office
Tres Sirenas
Sur Beach Club
Floor Plan
Casa Theodore Floor Plans
Casa Theodore Bedroom Layout
Store
Pre-Stocking Packages
Food
Beverages
Additional Options
Travel Insurance/Damage Protection
Gift Certificates
Special Event Packages
Cart
Information
Villa Amenities
Terms & Conditions
Reviews
FAQ's
Videos
Driving Directions
Staff Bios
Customer Photos
Special Events Photos
Credit Card Auth Form
Security Deposit Auth Form
Enhanced Cleaning Protocol